Urmet_Fuorisalone 2026

ARROW


SPECIALE MILANO DESIGN WEEK
SPECIALE MAISON&OBJET
SPECIALE LONDON DESIGN FESTIVAL
SPECIALE IMM COLOGNE
INTERVISTE - DESIGN TALKS

Kerakoll_Teatro della Vita

Una casa a Milano ridisegnata dal suo disimpegno
Un corridoio curvo che mette in relazione cucina, living e zona notte, diventa il fulcro del progetto. Acciaio inox, tende colorate e geometrie morbide restituiscono coerenza agli spazi
Autore: rossana vinci
segnala ad un amico | versione stampabile
Dimensione testo  
Ph. © Martino Stelzer Ph. © Martino Stelzer
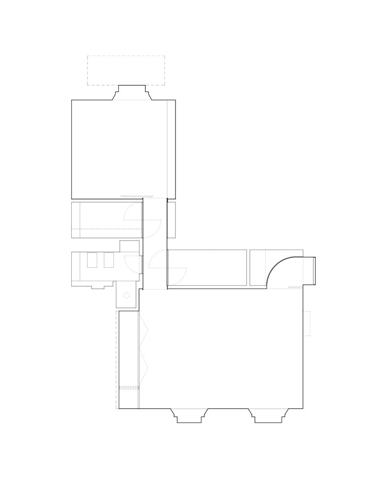
05/12/2025 - A pochi passi dal centro storico di Milano, un appartamento segnato da anni di divisioni e rimaneggiamenti ritrova identità e continuità grazie all’intervento di SOLUM Studio, che sceglie di lavorare proprio su ciò che solitamente rimane ai margini del progetto: i cosiddetti spazi “di servizio”.
 
Un ribaltamento di prospettiva che trasforma il disimpegno in un dispositivo architettonico capace di ordinare, collegare e dare ritmo all’intera casa.
L’appartamento presentava una planimetria complessa, esito di trasformazioni che avevano compromesso la leggibilità degli ambienti. Il progetto nasce dal desiderio di recuperare funzioni spesso sacrificate negli interni di piccola metratura, ma essenziali per un vivere quotidiano confortevole. Da qui l’idea di mettere al centro proprio quegli spazi di passaggio, elevandoli a protagonisti.
 
L’ingresso si apre in una anticamera semicircolare che separa la soglia dal soggiorno affacciato sul cortile interno. La cucina, completamente nascosta da pannellature che riprendono la finitura delle pareti, lascia respiro a un living rigoroso e misurato, definito da materiali continui e cromie controllate.
 
La connessione tra zona giorno e camera da letto è affidata a un corridoio dal soffitto curvo, ridisegnato a seguito della scoperta in cantiere di una trave metallica ribassata. La criticità si trasforma in gesto progettuale: la curva accompagna il passaggio e ne diventa l’elemento distintivo, un segno che guida e scandisce l’esperienza dello spazio.
 
Il corridoio è schermato da una tenda colorata che funge da elemento di filtro, mentre l'acciaio inox riveste ingresso e disimpegno, moltiplicando riflessi e profondità. La materia diventa così strumento percettivo: camuffa, rimanda, dilata. A contrasto, le pareti grigie dalla texture morbida e il pavimento in resina cementizia disegnano un involucro uniforme e tattile, animato da accenti cromatici calibrati nelle tende e nelle chiusure della cucina.

Coerente e misurato, il linguaggio di SOLUM Studio restituisce coesione a un interno complesso, costruendo un racconto che parte da uno spazio spesso dato per scontato — il disimpegno — e lo trasforma nella chiave di lettura dell’intera casa.

  Scheda progetto: Casa con un disimpegno
Martino Stelzer
Vedi Scheda Progetto
Martino Stelzer
Vedi Scheda Progetto
Martino Stelzer
Vedi Scheda Progetto
Martino Stelzer
Vedi Scheda Progetto
Martino Stelzer
Vedi Scheda Progetto
Martino Stelzer
Vedi Scheda Progetto
Martino Stelzer
Vedi Scheda Progetto
Martino Stelzer
Vedi Scheda Progetto
Martino Stelzer
Vedi Scheda Progetto
Vedi Scheda Progetto


Consiglia questa notizia ai tuoi amici

ULTIME NEWS SU CASE & INTERNI
14.04.2026
Ferrari London, un nuovo spazio per la moda nel cuore di Mayfair
14.04.2026
'Liberare lo spazio, far tornare la luce'. Un racconto domestico firmato Moitié Studio
13.04.2026
Casa VH, un appartamento sul mare rilegge l’immaginario nautico
� le altre news

  Scheda progetto:
SOLUM Studio

Casa con un disimpegno

 NEWS CONCORSI
+20.04.2026
Villa Gioia: Terraviva lancia un bando internazionale per la rigenerazione di una tenuta storica sul Lago di Garda
+10.04.2026
In chiusura PHOTOMAARC2026: i luoghi dell’educazione tra fotografia e architettura
+02.04.2026
'Reuse the Kiln', il contest per trasformare la Fornace Penna in centro civico
+02.04.2026
Sacrvm Loci: deadline estesa al 7 aprile per la call internazionale
+01.04.2026
ReA! Art Fair 2026: candidature aperte fino al 1° maggio
tutte le news concorsi +

extra_lema
Kerakoll_Teatro della Vita
Condizioni generali | Informativa PrivacyCookie  | Note Legali | Contatti/Assistenza | Lavora con noi | Pubblicità |  Rss feed
© 2001-2026 Edilportale.com Spa, P.IVA 05611580720 n°iscrizione ROC 21492 - Tutti i diritti riservati
Iscritta presso il Tribunale di Bari, Num.R.G. 1864/2020 © Riproduzione riservata