extra_Ermetika

extra_Parkair Energy Solutions

extra_Umbrosa

interno_Partner_material-bank

extra_SCIROCCO H


SPECIALE MILANO DESIGN WEEK
SPECIALE MAISON&OBJET
SPECIALE LONDON DESIGN FESTIVAL
SPECIALE IMM COLOGNE
INTERVISTE - DESIGN TALKS


Roma: 2 mostre alla Casa dell'Architettura
Protagonisti dell'iniziativa i giovani talenti dell'architettura romana
segnala ad un amico | versione stampabile
Dimensione testo  
10/12/2009 – La Casa dell’Architettura di Roma (piazza Manfredo Fanti 47) inaugura domani, 11 dicembre, alle ore 20,30, le mostre “Ventisettetrentasette. Rassegna Internazionale di Giovani Architetti Romani” e “presS/Tmag”.

La prima delle citate esposizioni è organizzata dalla Consulta Giovanile dell’Ordine degli Architetti Pianificatori Paesaggisti e Conservatori di Roma e Provincia, per la cura dell’architetto Nicoletta Mairo. Intento principale dell’iniziativa, che ha già fatto tappa a Siviglia, è quello di offrire un palcoscenico internazionale itinerante alle giovani leve dell’architettura romana. I 30 protagonisti dell’evento, tra studi e progettisti,  hanno tutti un’età compresa tra i 27 e i 37 anni. Ne riportiamo di seguito i nomi: +39.6architettura; 1AX_architettiassociati; A4studioassociato; Annese+Farina+Garofano; ANZUstudio; ATENAstudio; At-studio; b4architects Elvels+Papitto; Bicuadro; CLOarchitetti; Console+Oliva; Costa+Fiori+Ventura; dAM; DEMOarchitects; Evangelista; l'Abstudio; Manfredi+Pistoia; MODOstudio; Mtstudio; NABITO; Na3; OFLarchitecture; Pstudio; Petrini+Malfona; SG progetti; Ungroup; Voltaggio.

“L’esposizione, che rappresenterà un momento di analisi, confronto e indagine sulla giovane architettura romana e, in genere, sul futuro dell’architettura italiana, partendo dal Padiglione Finlandese dell’Expo del 1992 di Siviglia il giorno 21 maggio 2009, raggiungerà, in seguito, altre importanti città europee”, spiegano gli organizzatori dell’evento.
 
La rassegna “presS/Tmag” presenta invece i progetti contenuti nel volume presS/Tmag, raccolta delle opere di architettura tratte dalla rivista elettronica presS/Tmagazine.
 
L’inaugurazione delle due mostre sarà preceduta nel pomeriggio di domani, alle ore 17.30, presso l’IN/ARCH (ACER - via di villa Patrizi 11, Roma) da un incontro, cui prenderanno parte in qualità di relatori Alessandro Ridolfi Consigliere dell’Ordine P.P.C di Roma e Provincia e delegato alle attività della Consulta Giovani Architetti; Margherita Guccione Direttore del servizio Architettura e Urbanistica della DARC del Ministero per i Beni e le Attività Culturali; Cecilia D’Elia Vicepresidente della Provincia di Roma; Massimo Pineschi Consigliere Segretario - Ufficio di Presidenza Consiglio Regionale del Lazio; Nicoletta Mairo Coordinatrice della Consulta Giovanile Ordine degli Architetti P.P.C. di Roma e Provincia. Chiuderà l’incontro Luigi Prestinenza Puglisi, architetto e critico di architettura, che presenterà il volume e la mostra intitolati presS/Tmag: raccolta di opere di architettura tratte dalla rivista elettronica presS/Tmagazine.
 
L’ingresso alla mostra è libero.

  Scheda progetto: ''I Piloni''
Vedi Scheda Progetto
Vedi Scheda Progetto
Vedi Scheda Progetto
Vedi Scheda Progetto
Vedi Scheda Progetto
Vedi Scheda Progetto
Vedi Scheda Progetto
Vedi Scheda Progetto
Vedi Scheda Progetto
Vedi Scheda Progetto
  Scheda progetto: Un'idea per la ricostruzione
Vedi Scheda Progetto
Vedi Scheda Progetto
Vedi Scheda Progetto
Vedi Scheda Progetto
Vedi Scheda Progetto
Vedi Scheda Progetto
Vedi Scheda Progetto
  Scheda progetto: Padiglione Italia Expo Shanghai 2010
bicuadro
Vedi Scheda Progetto
bicuadro
Vedi Scheda Progetto
bicuadro
Vedi Scheda Progetto
bicuadro
Vedi Scheda Progetto
  Scheda progetto: MAKING RADURA - Museo del sito archeologico di Tulum
Vedi Scheda Progetto
Vedi Scheda Progetto
Vedi Scheda Progetto
Vedi Scheda Progetto
Vedi Scheda Progetto
  Scheda progetto: Teatro comunale di Frosinone - Progetto Preliminare
Roberto Ferlito
Vedi Scheda Progetto
Roberto Ferlito
Vedi Scheda Progetto
© NABITO ARQUITECTURA
Vedi Scheda Progetto
© NABITO ARQUITECTURA
Vedi Scheda Progetto
© NABITO ARQUITECTURA
Vedi Scheda Progetto
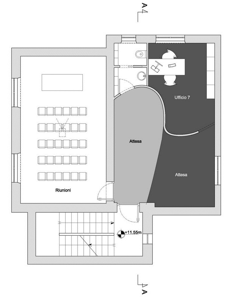
  Scheda progetto: Uffici Caritas
Vedi Scheda Progetto
Vedi Scheda Progetto
Vedi Scheda Progetto
Vedi Scheda Progetto
Vedi Scheda Progetto
Vedi Scheda Progetto
Vedi Scheda Progetto
Vedi Scheda Progetto
Vedi Scheda Progetto
  Scheda evento:
Mostra:
11-24/12 CASA DELL'ARCHITETTURA DI ROMA
Ventisettetrentasette


Consiglia questa notizia ai tuoi amici

ULTIME NEWS SU EVENTI
19.12.2025
A Londra, dentro l’universo Wes Anderson
19.12.2025
12 anni di Marina Abramović e Ulay. La più grande mostra mai realizzata a Lubiana
17.12.2025
Le luminarie di Mimmo Paladino illuminano il cielo di Perugia
� le altre news

  Scheda progetto:
Factory Architettura

''I Piloni''
  Scheda progetto:
g.evels & s.papitto - b4architects

Un'idea per la ricostruzione
  Scheda progetto:
Bicuadro Architects in collaborazione con Arch Farcomeni e Hydroingea studio di ingegneria

Padiglione Italia Expo Shanghai 2010
  Scheda progetto:
Alessandro Console

MAKING RADURA - Museo del sito archeologico di Tulum
  Scheda progetto:
Nabito Architettura - Noos Architetti

Teatro comunale di Frosinone - Progetto Preliminare
  Scheda progetto:
na3 - Studio di Architettura

Uffici Caritas
  Scheda evento:
11-24/12 CASA DELL'ARCHITETTURA DI ROMA
Ventisettetrentasette

 NEWS CONCORSI
+22.12.2025
Al via la prima edizione di SUPERTOSCANA
+18.12.2025
Mani-mente-Mani: il gesto artistico protagonista al IV Premio Marca Corona
+18.12.2025
10° Design Awards: nuova scadenza 18 febbraio
+17.12.2025
Ivrea: al via il contest ‘Olivetti Theatre’
+15.12.2025
Costruire speranza in Senegal: torna il Kaira Looro Architecture Competition
tutte le news concorsi +

extra_Ermetika
Condizioni generali | Informativa PrivacyCookie  | Note Legali | Contatti/Assistenza | Lavora con noi | Pubblicità |  Rss feed
© 2001-2025 Edilportale.com Spa, P.IVA 05611580720 n°iscrizione ROC 21492 - Tutti i diritti riservati
Iscritta presso il Tribunale di Bari, Num.R.G. 1864/2020 © Riproduzione riservata