Finion


SPECIALE MILANO DESIGN WEEK
SPECIALE MAISON&OBJET
SPECIALE LONDON DESIGN FESTIVAL
SPECIALE IMM COLOGNE
INTERVISTE - DESIGN TALKS

Fiora Bath Collections S.L.

Mariano Bayón per Vitoria
Un Centro per Congressi, Esposizioni e Arti Sceniche
Autore: rossella calabrese
segnala ad un amico | versione stampabile
Dimensione testo  
23/01/2009 – Si è concluso con la vittoria dello studio madrileno Bayón - Arquitectura y Urbanismo il concorso internazionale per la progettazione del “Palacio de Congresos, Exposiciones y de las Artes Escénicas” della città basca di Vitoria.
 
Alla competizione hanno preso parte in qualità di concorrenti 22 studi di progettazione. Il secondo premio del concorso è stato attribuito alla cordata Andrés Perea Ortega - Euroestudios.
 
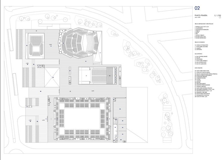
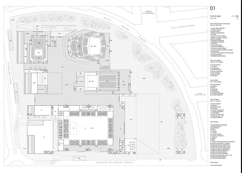
Mariano Bayón, che per la città di Vitoria ha in passato progettato le “Torri di Cristallo” nel quartiere di Salburua, immagina questa volta un complesso architettonico che, collocato nella principale piazza cittadina (Plaza Euskaltzaindia) - dove sorge anche la sede del governo basco - si articoli su quattro edifici comunicanti, collocati su due piattaforme.
 
La struttura - definita dall’architetto madrileno “una piccola città nella città” -  disporrà di una sala mostre (12000 mq); una sala congressi (7.676 mq); un auditorium (3.810 mq); una sala concerti (1.672mq); spazi comuni e un parcheggio con 767 posti auto.
 
Sulle facciate esterne dei quattro volumi, rivestite in vetro e ceramica dorata, saranno collocati dei maxi schermi attraverso cui proiettare video, immagini, messaggi luminosi o trasmettere in diretta quanto accade all’interno dell’edificio (concerti, inaugurazioni, etc...).
 
Al “Palacio” si accederà attraverso una nuova piazza che, collocata sul lato est del complesso, ospiterà una caffetteria e un ristorante con vista panoramica.
 
Il costo complessivo dell’opera è stimato attorno ai 112 milioni di euro, di cui 86,6 destinati ai lavori di costruzione (il cui avvio è previsto per il 2011) e 25,6 all’allestimento.

 

  Scheda progetto: Palacio de Congresos, Exposiciones y de las Artes Escénicas
Vedi Scheda Progetto
Vedi Scheda Progetto
Vedi Scheda Progetto
Vedi Scheda Progetto
Vedi Scheda Progetto
Vedi Scheda Progetto
Vedi Scheda Progetto
Vedi Scheda Progetto
Vedi Scheda Progetto


Consiglia questa notizia ai tuoi amici

ULTIME NEWS SU RISULTATI
10.03.2011
Young Architects Program MAXXI: vincono i romani stARTT
02.03.2011
Areale ferroviario di Bolzano: vince il team di Boris Podrecca
28.02.2011
'Progetto in evoluzione. Giò Ponti e Villa Favorita a Valdagno': gli esiti del concorso
� le altre news

  Scheda progetto:
Bayón - Arquitectura y Urbanismo

Palacio de Congresos, Exposiciones y de las Artes Escénicas

 NEWS CONCORSI
+05.12.2025
La stanza d’albergo del futuro secondo gli Hotel Designer Awards
+03.12.2025
Re-Gen Gorizia. Un nuovo concept di città per Sant'Anna
+26.11.2025
Premio DOMUS Restauro e Conservazione. Preesistenze storiche e architettura
+25.11.2025
Architetture per la ricostruzione post-sismica di Izlloulen, Marocco
+24.11.2025
A Bauhaus Bathroom: progettare un bagno per la Gropius House
tutte le news concorsi +

extra_Umbrosa
Fiora Bath Collections S.L.
Condizioni generali | Informativa PrivacyCookie  | Note Legali | Contatti/Assistenza | Lavora con noi | Pubblicità |  Rss feed
© 2001-2025 Edilportale.com Spa, P.IVA 05611580720 n°iscrizione ROC 21492 - Tutti i diritti riservati
Iscritta presso il Tribunale di Bari, Num.R.G. 1864/2020 © Riproduzione riservata