extra_Saba Italia

interno_Partner_material-bank

extra_Zafferano

extra_Ottostumm-Mogs


SPECIALE MILANO DESIGN WEEK
SPECIALE MAISON&OBJET
SPECIALE LONDON DESIGN FESTIVAL
SPECIALE IMM COLOGNE
INTERVISTE - DESIGN TALKS

JOHN RICHMOND

Residenza Universitaria di Perugia: vince lo studio VZL
Ampio uso delle energie rinnovabili e attento studio della risorsa solare
Autore: cecilia di marzo
segnala ad un amico | versione stampabile
Dimensione testo  
28/05/2007 – Lo studio VZL Architetti Associati si è aggiudicato il 1° premio del concorso di progettazione della Residenza Universitaria con servizi polivalenti nella zona Monteluce in Perugia.

2° classificato l’arch. Maurizio Pavani (F+P Architetti) e 3° l’arch. Camillo Botticini.

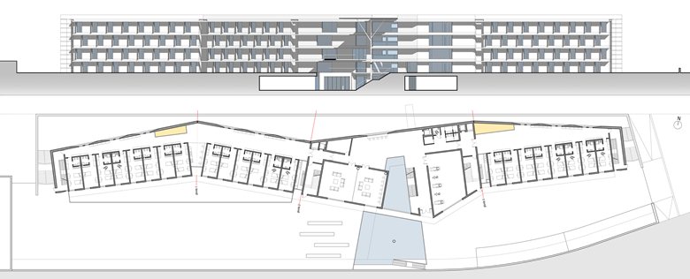
La proposta progettuale risultata vincitrice «si insinua tra le pieghe della città storica e nel rapporto di questa con il paesaggio. Si è fatto riferimento alla forza e al confronto delle mura medievali con la campagna in un rapporto di natura e artificio primordiale e immaginifico.
I principi ordinatori del progetto sono riconducibili a quattro principali aspetti identificativi dell'architettura della Residenza Universitaria: il volume generato da una forma organica di base e orientato sull’asse est-ovest è articolato in quattro blocchi di fabbrica; la reinterpretazione delle mura come sistema di terrazzamento e di contenimento; l’articolazione e la diversità degli spazi esterni pedonali e carrabili connessi al tessuto circostante.
Il progetto nasce dal rapporto tra costruzione e strada, ponendosi come fronte e blocco unico sul confine nord del lotto parallelo alla strada su cui si affacciano, verso sud, gli alloggi della residenza universitaria.
La scelta di porre a sud gli alloggi degli studenti, per le favorevoli condizioni di luce e di clima, ha generato un fronte smaterializzato e complesso per le sue dinamiche continue e differenziate.
La residenza universitaria prevede un numero di 88 unità-alloggi, (per 150 posti letto) allocati in tre distinti corpi di fabbrica, suddivisi a loro volta in 62 camere doppie, 18 camere singole e 8 camere per diversamente abili.
Il quarto corpo di fabbrica, il cuore dell’edificio, ospita servizi e uffici.
L’edificio è stato progettato in modo tale da ridurre al massimo il proprio fabbisogno energetico attraverso un ampio uso delle energie rinnovabili ed un attento studio della risorsa solare. Questa strategia “ecologica†ha permesso di raggiungere un indice termico pari a 19 kWh/mq annuo».


  Scheda progetto: Residenza Universitaria con servizi polivalenti
Vedi Scheda Progetto
Vedi Scheda Progetto
Vedi Scheda Progetto
Vedi Scheda Progetto
Vedi Scheda Progetto
Vedi Scheda Progetto
Vedi Scheda Progetto
Vedi Scheda Progetto
Vedi Scheda Progetto
Vedi Scheda Progetto
  Scheda progetto: Residenza universitaria con annessi servizi polivalenti in zona Monteluce
Vedi Scheda Progetto
Vedi Scheda Progetto
Vedi Scheda Progetto
Vedi Scheda Progetto
Vedi Scheda Progetto
Vedi Scheda Progetto
Vedi Scheda Progetto
Vedi Scheda Progetto
Vedi Scheda Progetto
Vedi Scheda Progetto


Consiglia questa notizia ai tuoi amici

ULTIME NEWS SU RISULTATI
10.03.2011
Young Architects Program MAXXI: vincono i romani stARTT
02.03.2011
Areale ferroviario di Bolzano: vince il team di Boris Podrecca
28.02.2011
'Progetto in evoluzione. Giò Ponti e Villa Favorita a Valdagno': gli esiti del concorso
� le altre news

  Scheda progetto:
VZL Architetti Associati

Residenza Universitaria con servizi polivalenti
  Scheda progetto:
F+P Architetti

Residenza universitaria con annessi servizi polivalenti in zona Monteluce

 NEWS CONCORSI
+05.03.2026
PHOTOMAARC2026: i luoghi dell’educazione tra fotografia e architettura
+05.03.2026
Arenzano Riviera Moderna 2026: workshop e convegno internazionale di progettazione
+03.03.2026
Hotel Designer Awards 2026 cerca idee per la stanza d’albergo del futuro
+02.03.2026
Verso la chiusura ‘Architecture in the Aftermath of Disasters’
+02.03.2026
L'Architettura come opera corale: al via i Premi IN/ARCHITETTURA 2026
tutte le news concorsi +

interno_Partner_material-bank
 WallyArt
Condizioni generali | Informativa PrivacyCookie  | Note Legali | Contatti/Assistenza | Lavora con noi | Pubblicità |  Rss feed
© 2001-2026 Edilportale.com Spa, P.IVA 05611580720 n°iscrizione ROC 21492 - Tutti i diritti riservati
Iscritta presso il Tribunale di Bari, Num.R.G. 1864/2020 © Riproduzione riservata